V projektu přístavby a stavebních úprav sportovního klubu v Budiměřicích, jak zní oficiální název, nebo-li rekonstrukce kabin na hřišti, je konečně vidět trochu světla na konci tunelu. Během posledního týdne byla vypsána celkem 3 výběrová řízení na zhotovitele veřejných zakázek:
Celková očekáváná hodnota poptávaných prací je 16.4 mil. Kč bez daně. Dlužno podotknout, že vzhledem k růstu cen materiálu je možné, že nabídky budou vyšší.

Pokud se nám podaří vybrat spolehlivé dodavatele s přijatelnou cenou a nenastanou komplikace během administrace výběrového řízení, na přelomu roku by mohly být uzavřeny smlouvy a v lednu začít práce. V podmínkách smlouvy požadujeme dokončení díla do 31.10.2022.
Projekt by měl být částečně financován dotací v hodnotě téměř 2,5 mil. Kč, ale právě paradoxně plnění technických a administrativních podmínek se podepisuje na zdlouhavém a složitém postupu.
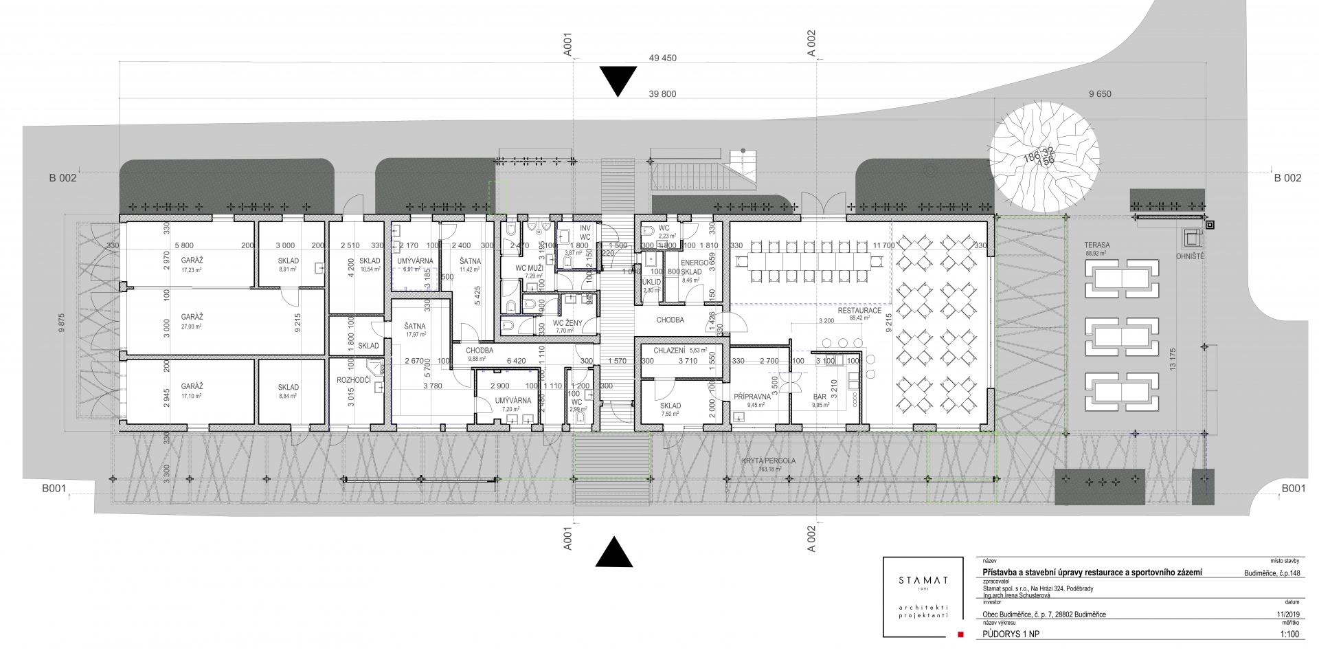
Připomeňme si, že nejde pouze o "opravu" kabin pro fotbalisty, ale o zásadní rekonstrukci a rozšíření celého objektu a úpravu okolí, jejímž výsledkem bude nejen moderní zázemí pro všechny sportovní a jiné spolky, ale především místo pro setkávání všech občanů obce. Ať se již jedná o společenské, kulturní, dětské nebo sportovní akce nebo jen každodenní setkání při něčem dobrém v restauraci. V dnešní době stále přetrvájících restrikcí spojených s covidem to zní až nepatřičně, ale je nutné věřit, že se doba "společná" zase vrátí a my v Budiměřicích na ní budeme připraveni.
Budoucí vzhled si můžeme připomenout původní architektonickou studií z doby před 2 lety. Konečný vzhled se nebude od studie příliš lišit.